Imaginer

Un processus créatif et technique qui transforme une vision en un plan concret et réalisable.

Ecouter et comprendre les attentes du client, son style architectural, ses besoins, son budget et les délais.

Visualiser un projet (les fonctionnalités, les matériaux de la maison) …

Créer des esquisse et plans en tenant compte des contraintes techniques et réglementaires.

Proposer des idées novatrices, des options personnalisées tout en respectant les normes de constructions.

PRESTATION ETUDE

Un bureau d’étude intégré qui imagine avec vous le projet de vos rêves.

Étude de faisabilité du potentiel constructif d’une parcelle :

L’étude de faisabilité est indispensable pour déterminer si un projet est réalisable et viable. Elle doit répondre à certain nombre d’interrogations pour permette au client de prendre une décision.

 Cette prestation comprend :

Déplacement sur le terrain (visite du bâtiment existant le cas échéant)

Analyse du programme fourni par le client.

Analyse de la réglementation PLU (plan local d’urbanisme)

Réalisation d’esquisses (plans des niveaux, des façade et vue 3D)

Etablissement d’un descriptif/estimatif de travaux.

Remise de l’étude au client.

Demande d’autorisation de construire

Le permis de construire est un dossier administratif, faisant partie des autorisations d’urbanisme comme la déclaration préalable de travaux, qui permet aux services d’urbanisme de votre commune de vérifier que votre projet respecte les règles et le code de l’urbanisme. Il est généralement exigé pour la réalisation de projet de construction de moyenne à grande ampleur. 

Une fois l’avant-projet validé, nous aurons le plaisir de commencer le dossier d’autorisation de construire.

 Cette prestation comprend :

Le formulaire Cerfa

Les documents graphiques du dossier (Plan de situation, Plan de masse, Plan en coupe, Notice descriptive, plans des façades et toiture, insertion du projet dans son environnement et photographie du terrain).

Le suivi administratif de l’instruction de la demande.

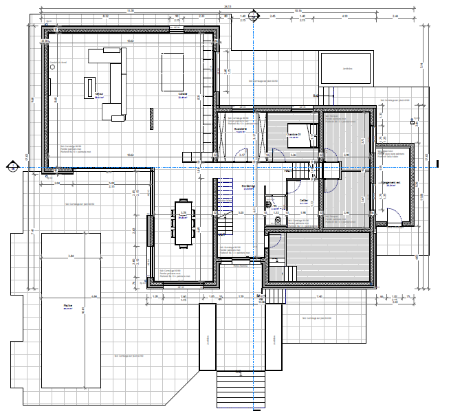
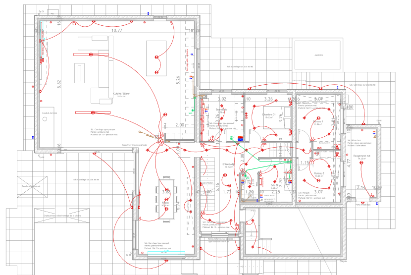
Architecture d’intérieur

L’architecte d’intérieur conçoit et aménage les espaces intérieure d’un bâtiment (villa, appartement, immeuble, bureaux…) en prenant en compte les besoins, les envies et le budget du client. En fonction de la forme et de la structure des pièces, l’architecte redéfinit l’aménagement et l’agencement de l’espace de façon à le rendre plus esthétique et pratique.

Cette prestation comprend :

Visite et Analyse du lieu à aménager et prise de côtes.

Proposition des idées d’aménagement, de matériaux, d’ameublement et d’équipement.

Elaboration des plans en s’appuyant sur l’esquisse retenue, simulations 3D

Réalisation d’un devis des travaux à entreprendre.